300 X 700 Konteyner

Alt Image Full

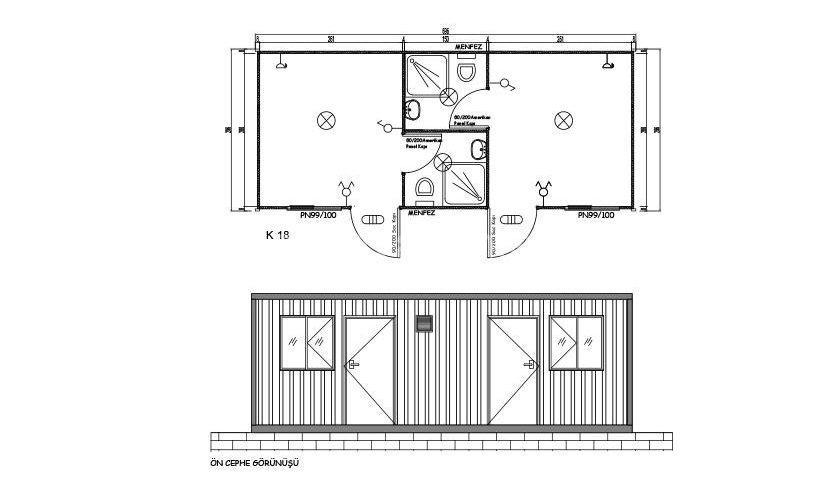
K18 Konteyner

Konteyner ev fiyatları ve modellerini gözden geçirirken Akkaya Konteyner uzmanlığından yararlanarak seçiminizi kolaylaştırmanızı öneririz. Aile sayınız ve kullanım ihtiyacınıza özel çok sayıda özgün tasarıma sahip uzmanlıkla hazırlanmış konteyner ev modeli arasında tarzınızı yakalayacaksınız.

Prefabrik Konteynerinizi İZMİR' in En Büyük Prefabrik Konteyner Üreticisi Akkaya'dan Alın. Hizmetiniz Sorunsuz Gönlünüz Rahat Olsun. Hemen Bizi Arayın! İletişim. Kurumsal Firma. Ödeme Kolaylığı. Örnek Projeler.

  • Alan:

    (300 x 700 ) 21 m² kapalı alan
  • Panel:

    40 mm EPS dolgulu Sandviç Panel ( 16 Dns)
  • Pencere:

    4+12+4 özellikli çift cam
  • İç Kapılar:

    Amerikan panel kapı
  • Yalıtım:

    Tavan arası cam yünü yalıtımlı
  • Tesisat:

    Tüm tesisatlar bağlantıya hazır
  • Garanti:

    1 yıl işçilik ve montaj garantisi
  • Kategori:

    Konteyner 300X700