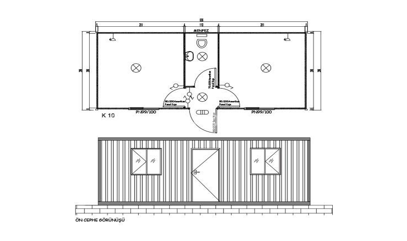
300 X 700 Konteyner

Alt Image Full

K10 Konteyner

  • Alan:

    (300 x 700 ) 21 m² kapalı alan
  • Panel:

    40 mm EPS dolgulu Sandviç Panel ( 16 Dns)
  • Pencere:

    4+12+4 özellikli çift cam
  • İç Kapılar:

    Amerikan panel kapı
  • Yalıtım:

    Tavan arası cam yünü yalıtımlı
  • Tesisat:

    Tüm tesisatlar bağlantıya hazır
  • Garanti:

    1 yıl işçilik ve montaj garantisi
  • Kategori:

    Konteyner 300X700